PROJEKTDATEN
- Jahr: 2025
- Standort: Wien
- Status: fertiggestellt
- Typologie: Sanierung, Wohnbau
- Fotos : © tschinkersten





















PROJEKTBESCHREIBUNG
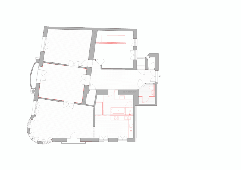
Farbkammern – Szenarisches Wohnen im Altbau
Umbau einer Wiener Altbauwohnung. Durch geschickte Raumrochaden und neue Verbindungen entstand ein zirkulärer Grundriss mit klaren Blickachsen und szenischen Raumfolgen. Der Entwurf inszeniert die Wohnung als choreografierte Abfolge unterschiedlicher Atmosphärenräume, verbunden durch präzise Blickbeziehungen und eine konsequent eingesetzte Farbdramaturgie.
Der Vorraum bildet den grafischen Auftakt: Ein weißer Fischgrätboden schafft Ruhe, während eine Fornasetti-Tapete mit Stadtlandschaftsmotiv Tiefe und Narration erzeugt. Ein maßgefertigtes Spiegelglas-Möbel bündelt Ablage, Garderobe und Stauraum; seine getönten, facettierten Fronten fragmentieren das Tapetenbild und setzen mit rotem Marmor einen haptischen Akzent.
Das Bad liegt als verbindender Knotenpunkt zwischen Vorraum und Küche und ermöglicht als neue Verbindung eine Abkürzung innerhalb der Wohnung. Als indigoblaue Gegenwelt zur rosa Küche verdichtet es den Raum über hochglänzende Fliesen, Fischgrätboden und präzise Lichtpunkte.
Die Küche ist als helle, monochrome Bühne in Rosa konzipiert. Reduzierte Flächen und klare Linien werden durch rote Details akzentuiert; Blickachsen verbinden die Küche mit dem tiefblauen Bad und öffnen sich weiter zum Wohnbereich.
Das Arbeitszimmer wirkt als aktivierender Farbraum: Ein kräftiges Blau bildet die Basis, ergänzt durch leuchtende Gelb- und Grünakzente und sorgfältig platzierte Objekte.
Im Salon sorgt eine umlaufende Nussholzverkleidung wie eine warme Schale für Behaglichkeit. Kassettierende Elemente rahmen den ovalen Tisch und bieten eine kuratierte Bühne für Porzellanfiguren.
Das Wohnzimmer schließt die Sequenz als ruhiger Pol in Petrol: satt, textil und atmosphärisch, im Dialog mit der rosa Küche, die als helles „Lichtfeld“ in der Blickachse erscheint. So wird die Altbauwohnung als zusammenhängende Erzählung aus Farbe, Material und Raumtiefe erlebbar.